площадью 54,00 м2, по цене 52000000 по адресу 1-я Ямского Поля - 1к1

Цена 52 000 000 р.
Район Тверской
Адрес 1-я Ямского Поля, 1к1
Площадь помещения 54 м2
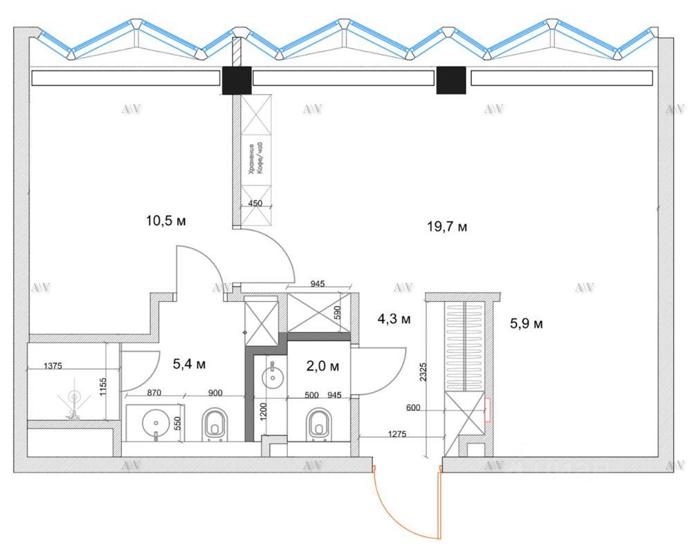
ПРОДАЖА! Готовый офис в премиальном МФК Slava возле метро Белорусская. Параметры офиса: - Этаж: 7 - Площадь: 54 м2 - Авторский ремонт - Open space - до 4 рабочих мест, кабинет руководителя - 2 санузла и душевая Цена: 54 000 000 руб. Преимущества: - Стильный дизайн - Продуманная планировка и все необходимые удобства для комфортной работы - Потрясающие панорамные виды Близость комплекса к ключевым транспортным развязкам и новое инфраструктурное развитие района, привлекающее множество крупных бизнесов и повышающее престижность расположения Для получения дополнительной информации и организации просмотра, свяжитесь с нами прямо сейчас! Все права защищены. Любое копирование или использование материалов без разрешения запрещено.
Объявление № 23246515
Дата подачи:
2 октября 2025 г. 17:14
Дата обновления:
2 октября 2025 г. 4:00
Просмотров 7 Хотите продать быстрее?

Продавец
AV INVEST GROUP
Показать номер телефона
Пожаловаться
Комментарии:
Добавить